TRIBUNJUALBELI.COM - Rumah dengan desain minimalis jadi inceran banyak orang.
Tak terkecuali para generasi Z yang sekarang sudah mulai membeli rumah.
Kini kisaran harga rumah mulai Rp 100 jutaan saja.
Misalnya di wilayah Bali hunian tipe 30 harganya Rp 160 jutaan hingga Rp 180 jutaan.
Harga itu dihimpun dari laman SiKumbang, yang datanya dari kerjasama para developer dengan PPDPP.
Baca Juga : 5 Rekomendasi Rumah Murah Tipe 36 Cuma Rp 100 Jutaan yang Siap Huni di Medan
Inilah 7 pilihan rumah murah tipe 30 di wilayah Bali.
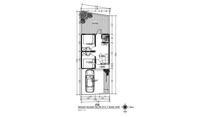
1. Green Harmony Residence
Luas tanah : 60 m²
Luas bangunan : 30 m²
Faslitas :
- 2 kamar tidur
- 1 kamar mandi
Lokasi : Bungaya Kangin, Bebandem, Karangasem, Bali
Harga : Rp 168.000.000, minat hubungi 0361-9078769
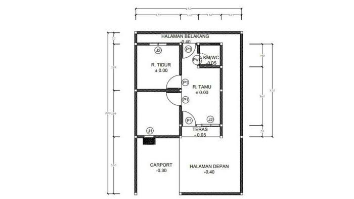
2. Green Park Residence
Luas tanah : 60 m²
Luas bangunan : 30 m²
Faslitas :
- 2 kamar tidur
- 1 kamar mandi
Lokasi : Subangan, Karangasem, Bali
Harga : Rp 181.000.000, minat hubungi 08123894908
Baca Juga : Cek Harga Rumah KPR Subsidi di Indramayu per Januari 2024, Mulai Rp 150 Jutaan
3. Graha Mulia Shanti
Luas tanah : 60 m²
Luas bangunan : 30 m²
Faslitas :
- 2 kamar tidur
- 1 kamar mandi
Lokasi : Batuaji, Karambita, Tabanan, Bali
Harga : Rp 168.000.000, minat hubungi 03614745898
4. Perumahan Pulai Obi Harmoni
Luas tanah : 65 m²
Luas bangunan : 30 m²
Faslitas :
- 2 kamar tidur
- 1 kamar mandi
Lokasi : Banyuning, BUleleng, Bali
Harga : Rp 181.000.000, minat hubungi 081936303884
5. Graha Asri Sambangan
Luas tanah : 70 m²
Luas bangunan : 30 m²
Faslitas :
- 2 kamar tidur
- 1 kamar mandi
Lokasi : Sambangan, Sukasada, Buleleng, Bali
Harga : Rp 181.000.000, minat hubungi 085965922295
6. Puri Toya Asri Permai
Luas tanah : 60 m²
Luas bangunan : 30 m²
Faslitas :
- 2 kamar tidur
- 1 kamar mandi
Lokasi : Banyuasari, Buleleng, Bali
Harga : Rp 181.000.000, minat hubungi 085937002295
7. Krisna Graha Panji Tahap 2
Luas tanah : 70 m²
Luas bangunan : 30 m²
Faslitas :
- 2 kamar tidur
- 1 kamar mandi
Lokasi : Panji, Sukasada, Buleleng, Bali
Harga : Rp 185.000.000, minat hubungi 081938831352

Belum ada komentar. Jadilah yang pertama untuk memberikan komentar!